Instapklaar 2-slpk appartement nabij centrum
Roeselare Vijfwegenstraat 99 B 12Verhuurd
Dit toffe 2-slpk appartement bevindt zich in Residentie Parkzicht, een woonsite op enkele minuutjes van het stadscentrum en het Sterrebos.
De gebouwen werden in 2015 opgetrokken rond een mooie gemeenschappelijke binnentuin met veel groen en kleurrijke bloemperkjes.
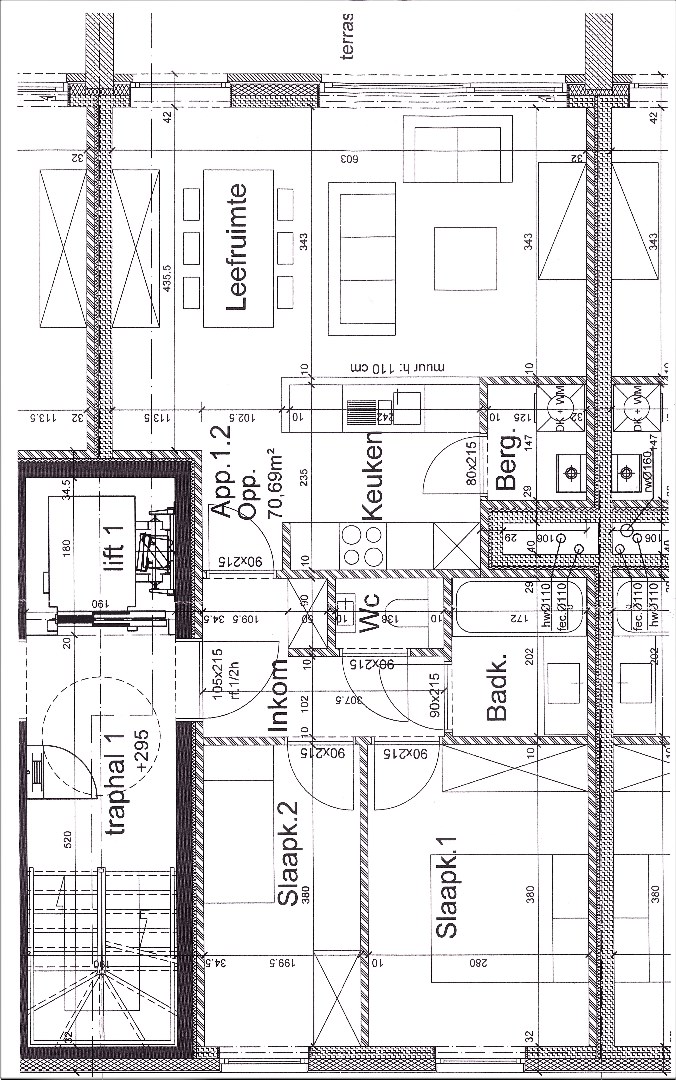
Het appartement (+- 70 m²) bevindt zich op de eerste verdieping en is als volgt ingedeeld:
inkomhal - glazen deur naar woonkamer met open ingerichte keuken - (technische) berging - overdekt terras (west gericht) - toilet - badkamer (douche) - 2 slaapkamers.
Het aanwezige meubilair, verlichting en gordijnen zijn INBEGREPEN in de vermelde huurprijs.
Maandelijkse bijdrage syndic: 30 euro (voorschot).
Het appartement beschikt over een private openlucht parkeerplaats gesitueerd aan de zijkant van het gebouw.
Het appartement is beschikbaar vanaf 1 maart '23, verzorgd - lichtrijk - instapklaar - energiezuinig (E61) - centraal gelegen - ...
De gebouwen werden in 2015 opgetrokken rond een mooie gemeenschappelijke binnentuin met veel groen en kleurrijke bloemperkjes.
Het appartement (+- 70 m²) bevindt zich op de eerste verdieping en is als volgt ingedeeld:
inkomhal - glazen deur naar woonkamer met open ingerichte keuken - (technische) berging - overdekt terras (west gericht) - toilet - badkamer (douche) - 2 slaapkamers.
Het aanwezige meubilair, verlichting en gordijnen zijn INBEGREPEN in de vermelde huurprijs.
Maandelijkse bijdrage syndic: 30 euro (voorschot).
Het appartement beschikt over een private openlucht parkeerplaats gesitueerd aan de zijkant van het gebouw.
Het appartement is beschikbaar vanaf 1 maart '23, verzorgd - lichtrijk - instapklaar - energiezuinig (E61) - centraal gelegen - ...