Nieuwbouwwoning met garage

Sint-Michiels Watteeuwstraat 14

Verhuurd
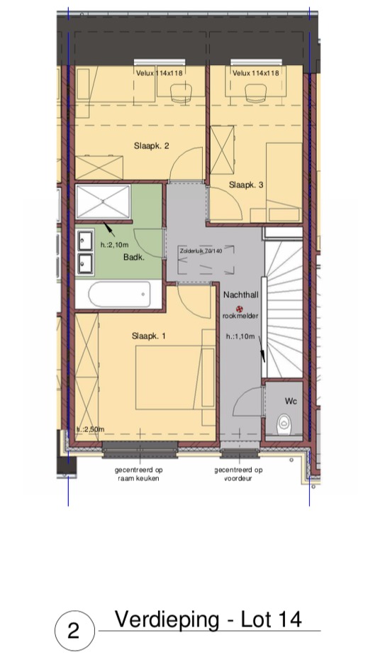
Ruime woning met GARAGE en ZONGERICHTE tuin. De ideale gezinswoning met volgende wooneigenschappen op een boogscheut van het station van Brugge en centrum van Sint-Michiels : o.a. een inkomhall, gastentoilet, lichtrijke living met zit- en eethoek, ruime ingerichte keuken met berging, 3 slaapkamers, badkamer met ligbad, inloopdouche, lavabo en apart toilet, ruime bergzolder. Tuin met aangelegd terras,… CV op aardgas (hoogrendementsketel), dubbele beglazing, geïsoleerd dak, extra parkeermogelijkheden voor de deur,… Kortom : een EXCELLENT aanbod !!! (foto's ter illustratie - woning wordt op dit moment nog afgewerkt)