Bouwgrond - HOB
Oostende Steensedijk 186Verkocht
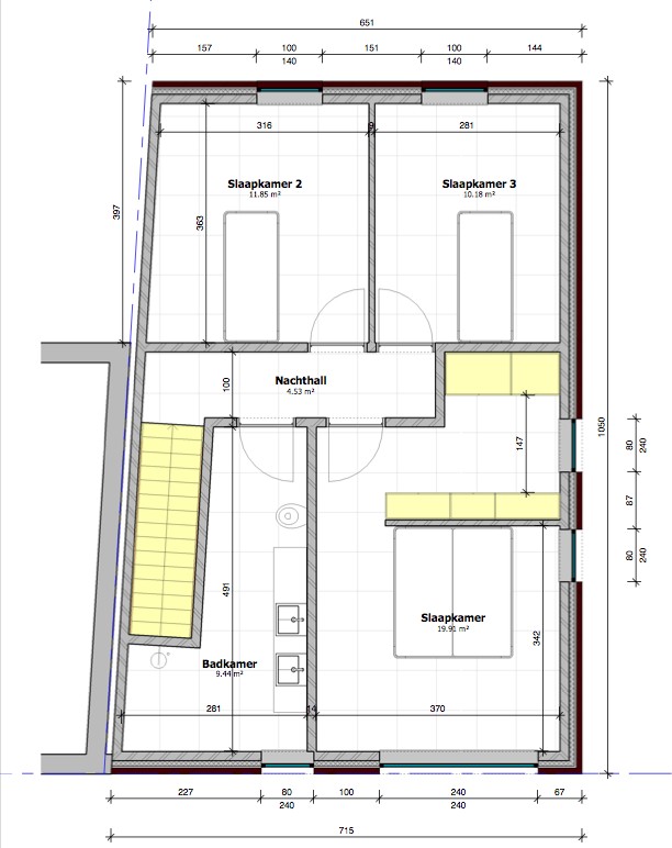
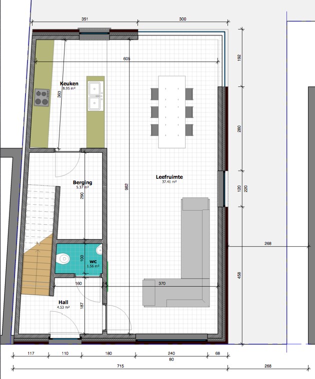
Perceel bouwgrond voor halfopen bebouwing, met goedgekeurde bouwvergunning (zie visualisatie). 241 m² valt onder recreatiegrond, dit wil zeggen dat dit als tuin te gebruiken is... Tot. opp. 411,58m².                    
                