Energiezuinige moderne villa
Maldegem Lievebarm 210 2AVerkocht
In de Lievebarm, vlak aan het kanaal, bieden wij 1 ruime open bebouwing op 872m2 grond aan. Het perceel is gelegen in een uiterst rustgevende groene omgeving aan het kanaal. Van hieruit kan je onmiddellijk prachtige wandelingen maken in de omliggende natuur.
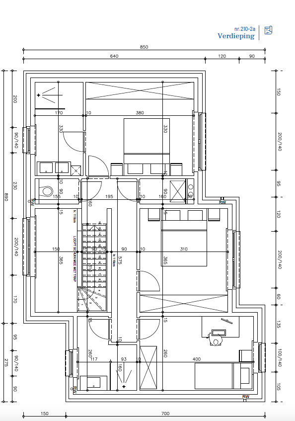
De woning heeft een ruime en lichtrijke indeling met grote bergruimtes, 3 slaapkamers en 2 badkamers. De interieurafwerking van deze woning is 100% op maat en vrij te kiezen a.d.h.v. de voorziene budgetten in het lastenboek.
Zorgeloos bouwen
Vanaf de eerste planbespreking tot een jaar na de oplevering kan je rekenen op de begeleiding en ondersteuning van de specialisten. Het ervaren Huysman Bouw team coördineert de uitvoering van jouw bouwproject van A tot Z.
Liever zelf bepaalde werken uitvoeren? Alles is bespreekbaar! Onze bouwadviseur vertelt je tijdens een afspraak graag meer over alle mogelijkheden.
De woning heeft een ruime en lichtrijke indeling met grote bergruimtes, 3 slaapkamers en 2 badkamers. De interieurafwerking van deze woning is 100% op maat en vrij te kiezen a.d.h.v. de voorziene budgetten in het lastenboek.
Zorgeloos bouwen
Vanaf de eerste planbespreking tot een jaar na de oplevering kan je rekenen op de begeleiding en ondersteuning van de specialisten. Het ervaren Huysman Bouw team coördineert de uitvoering van jouw bouwproject van A tot Z.
Liever zelf bepaalde werken uitvoeren? Alles is bespreekbaar! Onze bouwadviseur vertelt je tijdens een afspraak graag meer over alle mogelijkheden.