Landelijke nieuwbouwwoning
Maldegem Melkerij 7 lot 8Verkocht
Deze charmante landelijke nieuwbouwwoning is gelegen vlakbij het centrum van Maldegem.
De tuin is oostelijk georiënteerd en kijkt op de nieuw aangelegde groenzone.
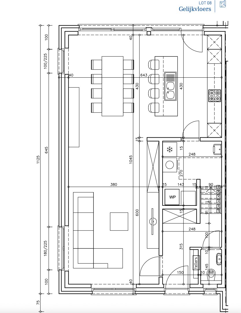
De woning geniet van een optimale woningindeling met op het gelijkvloers, een inkomhal met gastentoilet en een lichtrijke leefruimte met open keuken.
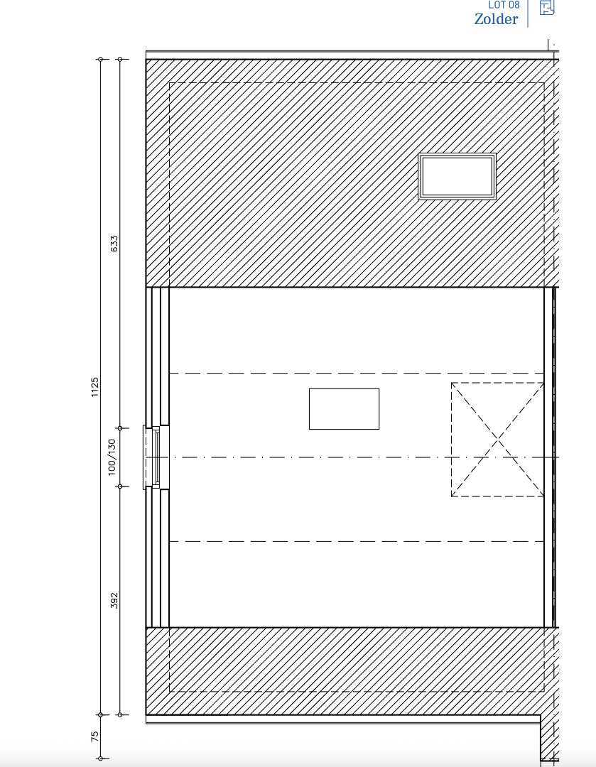
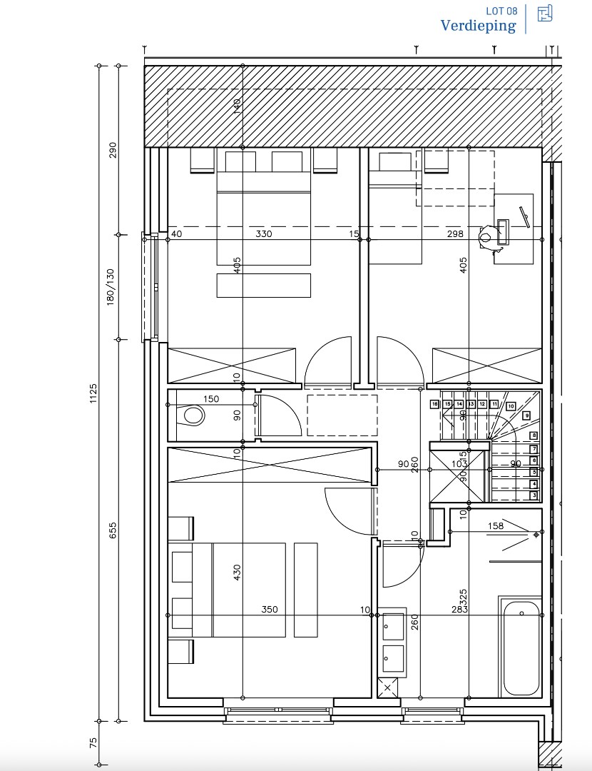
Op de eerste verdieping bevinden zich 3 slaapkamers en een badkamer met bad + inloopdouche. De praktische zolder is toegankelijk met een uitschuifbare zoldertrap. Deze woning is ondertussen in volle opbouw, de afwerking kan door u zelf of door ons gebeuren. Standaard zijn sowieso energiezuinige technieken inbegrepen: er is geluidswerende beglazing, een warmtepomp, ventilatie D en vloerverwarming op beide verdiepingen voorzien.
Zie jij jezelf hier wonen? We begeleiden je graag op weg naar je nieuwe (t)huis. Contacteer ons 0470 50 50 50 of info@futurimmo.be.
De tuin is oostelijk georiënteerd en kijkt op de nieuw aangelegde groenzone.
De woning geniet van een optimale woningindeling met op het gelijkvloers, een inkomhal met gastentoilet en een lichtrijke leefruimte met open keuken.
Op de eerste verdieping bevinden zich 3 slaapkamers en een badkamer met bad + inloopdouche. De praktische zolder is toegankelijk met een uitschuifbare zoldertrap. Deze woning is ondertussen in volle opbouw, de afwerking kan door u zelf of door ons gebeuren. Standaard zijn sowieso energiezuinige technieken inbegrepen: er is geluidswerende beglazing, een warmtepomp, ventilatie D en vloerverwarming op beide verdiepingen voorzien.
Zie jij jezelf hier wonen? We begeleiden je graag op weg naar je nieuwe (t)huis. Contacteer ons 0470 50 50 50 of info@futurimmo.be.