Lichtrijke nieuwbouw woning met perfecte ligging
Roeselare Violierstraat 26Verkocht
Deze moderne nieuwbouw woning vind je in de Violierstraat, waar ze deel uitmaakt van het mooie woonproject 'Botaniek'.
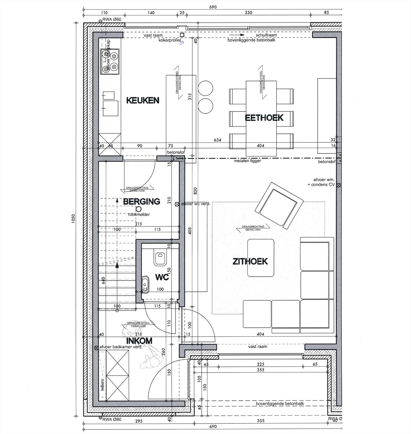
Met nadruk op een industriële look, tref je er alles wat je van een hedendaagse gezinswoning verwacht. Een inkomhal met gastentoilet en mooie leefruimte met geïntegreerde keuken. De verdieping biedt drie volwaardige slaapkamers, een afzonderlijk toilet en ruime badkamer met ligbad, inloopdouche en dubbele wastafel. Opbergruimte is er voldoende naast de keuken, alsook in de technische berging (verdieping) die eveneens als wasplaats fungeert. De onderhoudsvriendelijke, zonnige tuin met terras is toegankelijk vanuit de woonkamer. Parkeren kan makkelijk in de garagebox, te bereiken via een uitweg achteraan de woning. Deze moderne woonst werd volledig geschilderd én voorzien van gepaste verlichting. School, kinderopvang, supermarkt,... gelegen vlakbij dit woonproject. Ook de winkelstraten liggen op wandel- en fietsafstand. Wordt dit jouw nieuwe woning? Altijd welkom voor een bezoek! (contact: sarah@futurimmo.be) ... Vraagprijs excl. kosten. Lees meer Verberg
Met nadruk op een industriële look, tref je er alles wat je van een hedendaagse gezinswoning verwacht. Een inkomhal met gastentoilet en mooie leefruimte met geïntegreerde keuken. De verdieping biedt drie volwaardige slaapkamers, een afzonderlijk toilet en ruime badkamer met ligbad, inloopdouche en dubbele wastafel. Opbergruimte is er voldoende naast de keuken, alsook in de technische berging (verdieping) die eveneens als wasplaats fungeert. De onderhoudsvriendelijke, zonnige tuin met terras is toegankelijk vanuit de woonkamer. Parkeren kan makkelijk in de garagebox, te bereiken via een uitweg achteraan de woning. Deze moderne woonst werd volledig geschilderd én voorzien van gepaste verlichting. School, kinderopvang, supermarkt,... gelegen vlakbij dit woonproject. Ook de winkelstraten liggen op wandel- en fietsafstand. Wordt dit jouw nieuwe woning? Altijd welkom voor een bezoek! (contact: sarah@futurimmo.be) ... Vraagprijs excl. kosten. Lees meer Verberg