Interessante opbrengsteigendom met 6 kamers
Roeselare Westlaan 54Verkocht
Deze uiterst interessante OPBRENGSTEIGENDOM is gelegen langs de Westlaan en bestaat onder meer uit 6 verhuurde kamers.
Ze werd in 2013 grondig verbouwd en bevindt zich in goed onderhouden staat. Deze eigendom levert met de huidige huuropbrengsten een NETTO RENDEMENT van +- 5%. (hierbij werd reeds rekening gehouden met de jaarlijks terugkerende algemene kosten en grondlasten).
De indeling is als volgt:
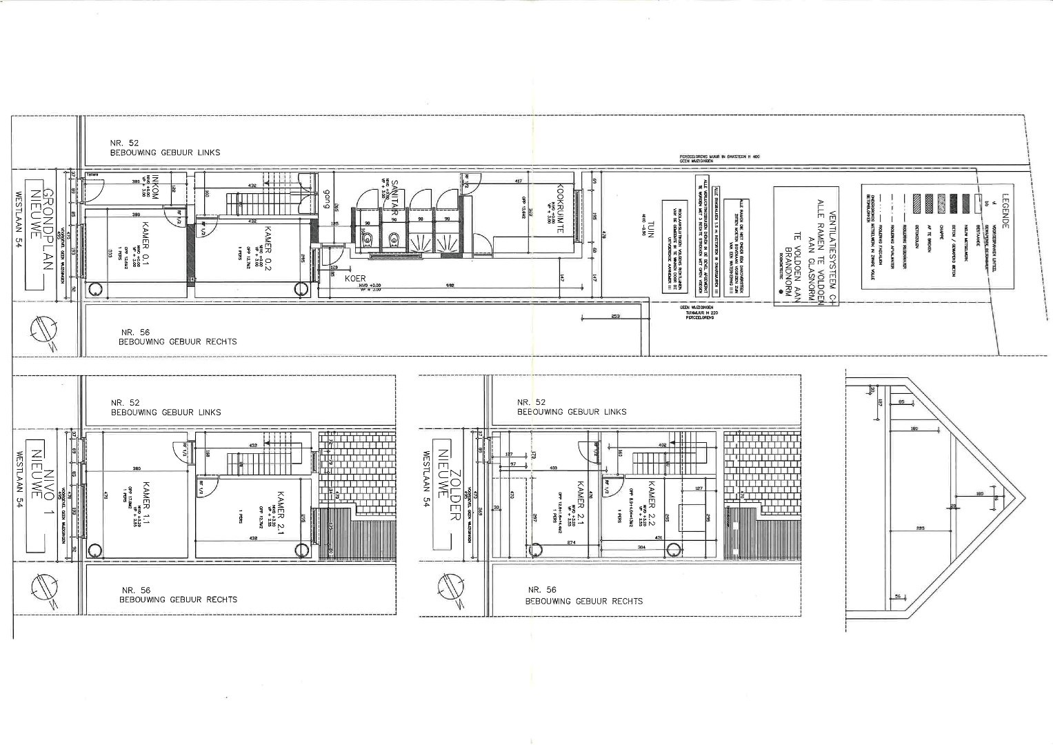
*NIVEAU 0:
gemeenschappelijke inkomhal - kamer 1 (12,6m²) - kamer 2 (12,7m) - traphal - gemeenschappelijk gedeelte omvattende 2 toiletten, 2 douches en een gezellige kookruimte met eetplaats.
Vanuit dit gedeelte is er toegang (2x) tot de overdekte koer (fietsenstalling) en aansluitend een gezellige stadstuin.
*NIVEAU 1: nachthal - kamer 3 (17,9m²) - kamer 4 (12,7m²)
*NIVEAU 2: nachthal - kamer 5 (14,4m²) - kamer 6 met mezzanine (13m²).
Alle kamers beschikken over een eigen wastafel met meubelkastje. De eigendom wordt centraal verwarmd met klassieke radiatoren op aardgas.
EPC 210 kWh/m² (C-label). Alle kamers op heden correct en ... vlot verhuurd. De eigendom is in goede staat en vraagt momenteel geen aanpassingswerken.
Meer info & details of een bezoek ter plaatse? Contacteer Sarah (sarah@futurimmo.be - 0472 613 011)
Lees meer Verberg
Ze werd in 2013 grondig verbouwd en bevindt zich in goed onderhouden staat. Deze eigendom levert met de huidige huuropbrengsten een NETTO RENDEMENT van +- 5%. (hierbij werd reeds rekening gehouden met de jaarlijks terugkerende algemene kosten en grondlasten).
De indeling is als volgt:
*NIVEAU 0:
gemeenschappelijke inkomhal - kamer 1 (12,6m²) - kamer 2 (12,7m) - traphal - gemeenschappelijk gedeelte omvattende 2 toiletten, 2 douches en een gezellige kookruimte met eetplaats.
Vanuit dit gedeelte is er toegang (2x) tot de overdekte koer (fietsenstalling) en aansluitend een gezellige stadstuin.
*NIVEAU 1: nachthal - kamer 3 (17,9m²) - kamer 4 (12,7m²)
*NIVEAU 2: nachthal - kamer 5 (14,4m²) - kamer 6 met mezzanine (13m²).
Alle kamers beschikken over een eigen wastafel met meubelkastje. De eigendom wordt centraal verwarmd met klassieke radiatoren op aardgas.
EPC 210 kWh/m² (C-label). Alle kamers op heden correct en ... vlot verhuurd. De eigendom is in goede staat en vraagt momenteel geen aanpassingswerken.
Meer info & details of een bezoek ter plaatse? Contacteer Sarah (sarah@futurimmo.be - 0472 613 011)
Lees meer Verberg