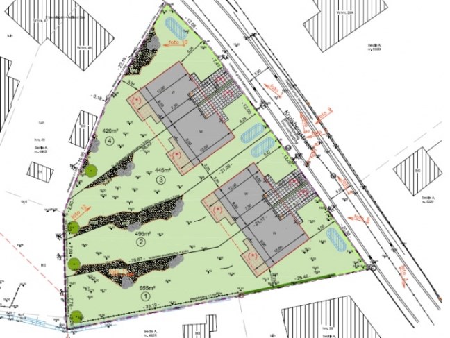
Landelijke nieuwbouwwoning - lot 1
Ruiselede Kruisbergstraat 43 Lot 1Verkocht
Energiezuinige nieuwbouwwoning in het landelijke dorp Kruiskerke (Ruiselede).
Gelegen nabij de op- en afrit van Aalter, heeft deze woning een vlotte verbinding naar Gent en Brugge door de directe aansluiting op de E40.
Deze nieuwbouwwoning is ontworpen met eenzelfde landelijke architectuur. De warme en natuurlijke gevelmaterialen zorgen voor een charmante uitstraling. In de woning is gezorgd voor een optimale woningindeling met telkens een inpandige garage, open leefruimtes, 3 slaapkamers en badkamer met ligbad en inloopdouche.
Bovendien geniet je door de grote raampartijen op ieder moment van de dag van veel lichtinval.
De interieurafwerking van de woning is 100% op maat. Je kiest zelf alle afwerkingsmaterialen a.d.h.v. de ruime budgetten die voorzien zijn in het lastenboek. Standaard zijn energiezuinige technieken sowieso inbegrepen. Er is superisolerende dubbele beglazing én vloerverwarming op beide verdiepingen voorzien.
Benieuwd naar het volledige lastenboek of meer info? Neem contact op met ons : 0470 50 50 50 of ... info@futurimmo.be. Lees meer Verberg
Gelegen nabij de op- en afrit van Aalter, heeft deze woning een vlotte verbinding naar Gent en Brugge door de directe aansluiting op de E40.
Deze nieuwbouwwoning is ontworpen met eenzelfde landelijke architectuur. De warme en natuurlijke gevelmaterialen zorgen voor een charmante uitstraling. In de woning is gezorgd voor een optimale woningindeling met telkens een inpandige garage, open leefruimtes, 3 slaapkamers en badkamer met ligbad en inloopdouche.
Bovendien geniet je door de grote raampartijen op ieder moment van de dag van veel lichtinval.
De interieurafwerking van de woning is 100% op maat. Je kiest zelf alle afwerkingsmaterialen a.d.h.v. de ruime budgetten die voorzien zijn in het lastenboek. Standaard zijn energiezuinige technieken sowieso inbegrepen. Er is superisolerende dubbele beglazing én vloerverwarming op beide verdiepingen voorzien.
Benieuwd naar het volledige lastenboek of meer info? Neem contact op met ons : 0470 50 50 50 of ... info@futurimmo.be. Lees meer Verberg